
企業名稱:河南威泰克機械制造有限公司
聯系人:任經理
電 話:0373-5086166
手 機:13903733810
郵 箱:86473173@qq.com
地 址:河南省新鄉市新鄉大道1789號
TD型按JB3926-85《垂直斗式提升機》標準設計制造,目前國內常用的斗式提升機均為垂直式,較新型。斗式提升機適用于垂直輸送粉狀、粒狀及小塊狀且磨琢性較小的散狀物料,如糧食、煤、水泥、碎礦石等,提升高度高40m。TD型斗式提升機備有四種料斗Q型(淺斗)、H型(弧底斗)、ZD型(中深斗)SD型(深斗)。

TD系列斗式提升機產品概述:
TD系列斗式提升機(膠帶斗式提升機)適用于垂直輸送粉狀、粒狀、及小塊狀的磨吸性較小的散狀物料,如糧食、煤、水泥、碎礦石等,提升高度*高40m。TD系列斗式提升機嚴格按照JB3926-85《垂直斗式提升機》標準設計制造,目前國內常用的斗式提升機均為垂直式。TD系列斗式提升機特點為:結構簡單,運行平穩,挖取式裝料,離心重力式卸料,物料溫度不超過60℃;TD系列斗式提升機與傳統D型斗式提升機相比輸送效率高、料斗形式多,應優先選用。TD型斗式提升機備有四種料斗,即:Q型(淺斗)、H型(弧底斗)、ZD型(中深斗)、SD型(深斗)。TD系列斗式提升機均采用皮帶+料斗提升輸送物料,目前已涉及到糧食、煤炭、粉煤灰、水泥、碎礦石、石英砂、炭素等行業領域中,并得到很好的應用。
TD系列斗式提升機產品基本結構:
TD型斗式提升機(膠帶斗式提升機)由運行部分(料斗與牽引膠帶),帶有傳動滾筒的上部區段,帶有拉緊滾筒的下部區段,中間機殼,驅動裝置,逆止制動裝置等組成,適用于向上輸送松散密度ρ<1.5t/m3粉狀、粒狀和小塊狀的無磨琢性和半磨琢性散狀物料,如煤、砂、焦末、水泥、碎礦石等。 TD型斗式提升機結構形式為:TD型斗式提升機的傳動裝置有兩種形式分別配有YZ型減速器ZQ(或YY)型減速器。YZ型軸減速器直接裝在主軸軸頭上,省去了傳動平臺、聯軸器等,使結構緊湊、重量輕,而且其內部帶有異型輥逆止器,逆止可靠。該減速器噪音低,運轉平穩,并隨主軸浮動,可消除安裝應力。

TD系列斗式提升機主要特點:
1、提升范圍廣:本系列斗式提升機對物料的種類、特性要求少,不但能提升一般粉狀、小顆粒狀物料,而且可提升磨琢性較大的物料。
2、密封性好,環境污染少。
3、驅動功率小,采用流入式喂料、誘導式卸料;采用大容量的料斗密集型布置,在物料提升時幾乎無回料和挖料現象,因此無效功率少。
4、使用壽命長:提升機的喂料采取流入式,無需用斗挖料,材料之間很少發生擠壓和碰撞現象。本機在設計時保證物料在喂料、卸料時少有撒落,減少了機械磨損。
5、提升高度高:提升機運行平穩,因此可達到較高的提升高度。
6、運行可靠性高:先進的設計原理和制造工藝,保證了整機運行的可靠性,無故障時間超過2萬小時。
TD型斗式提升機具有以下優點:
1、輸送量大,相同斗寬的TD型與D型相比,輸送量增大近一倍:
2、牽引件采用高強度橡膠輸送帶具有較高的抗拉強度,使用壽命長。
3、整機結構簡單、安裝方便、便于調整、維修和保養。
4、牽引件為低合金高強度園環鏈,經適當的熱處理后,具有很高的抗拉強度和耐磨性,使用壽命長。
本提升機為離心式或混合方式卸料,掏取式裝料,適用輸送堆積密度不大于1.5t/m3的粉狀、粒狀、小塊狀的低磨琢性物料,物料的溫度不得超過60度。 本系列斗式提升機備有四種料斗:Q型(淺斗)、H型(弧底斗)、zh型(中深斗)、sh型(深斗),分別輸送各種物料,用戶可以根據物料特性來選擇適當得料斗。本提升機代號為TD,即帶式斗式提升機;產品規格以斗寬表示。
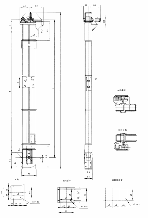
TD系列斗式提升機產品外形結構示意圖:

TD型斗式提升機的外形及安裝尺寸:

TD系列斗式提升機技術參數表:
|
型號 |
TD160 |
TD250 |
TD315 |
TD400 |
||||||||||||
|
料斗形式 |
Q |
h |
zD |
Sd |
Q |
h |
zD |
Sd |
Q |
h |
zD |
Sd |
Q |
h |
zD |
Sd |
|
輸送量(m3/h) |
5.4 |
9.6 |
9.6 |
16 |
12 |
22 |
23 |
35 |
17 |
30 |
25 |
40 |
24 |
46 |
41 |
66 |
|
斗寬(mm) |
160 |
250 |
315 |
400 |
||||||||||||
|
斗容(L) |
0.5 |
0.9 |
4.2 |
1.9 |
1.3 |
2.2 |
3.0 |
4.6 |
2 |
3.6 |
3.8 |
5.8 |
3.1 |
5.6 |
5.9 |
9.4 |
|
斗距(mm) |
280 |
350 |
360 |
450 |
400 |
500 |
480 |
560 |
||||||||
|
帶寬(mm) |
200 |
300 |
400 |
500 |
||||||||||||
|
斗速(m/s) |
1.4 |
1.6 |
1.6 |
1.8 |
||||||||||||
|
物料量大塊(mm) |
25 |
35 |
45 |
55 |
||||||||||||
|
TD500 |
TD630 |
TD160 |
TD250 |
TD350 |
TD450 |
|||||||||||
|
料斗形式 |
Q |
h |
zD |
Sd |
h |
zD |
Sd |
Q |
S |
Q |
S |
Q |
S |
Q |
S |
|
|
輸送量(m3/h) |
38 |
70 |
58 |
92 |
85 |
89 |
142 |
4.7 |
8 |
18 |
22 |
25 |
42 |
50 |
72 |
|
|
斗寬(mm) |
500 |
630 |
160 |
250 |
350 |
450 |
||||||||||
|
斗容(L) |
4.8 |
9 |
9.3 |
15 |
14 |
14.6 |
23.5 |
0.65 |
1.1 |
2.6 |
3.2 |
7 |
7.8 |
14.5 |
15 |
|
|
斗距(mm) |
500 |
625 |
710 |
300 |
400 |
500 |
640 |
|||||||||
|
帶寬(mm) |
600 |
700 |
200 |
300 |
400 |
500 |
||||||||||
|
斗速(m/s) |
1.8 |
2 |
1 |
1.25 |
1.25 |
1.25 |
||||||||||
|
物料量大塊(mm) |
60 |
70 |
25 |
35 |
45 |
55 |
||||||||||
說明:
1.表中斗容為計算斗容,輸送量按填充系數0.6計算得出。
2.斗提機料斗用途為:
淺料斗:輸送潮濕、易結塊、難拋出的物料。如濕沙、濕煤等。
深料斗:輸送干燥的、松散的、易拋出的物料。如水泥、煤塊、碎石等。
斗式提升機補充材料(供用戶參考):
斗式提升機用來垂直提升經過破碎機的石灰石、煤、石膏、熟料、干粘土等塊粒狀物料以及生料、水泥、煤粉等粉狀物料。根據料斗運行速度的快慢不同,斗式提升機可分為:離心式卸料、重力式卸料和混合式卸料等三種形式。離心式卸料的斗速較快,適用于輸送粉狀、粒狀、小塊狀等磨琢性小的物料;重力式卸料的斗速較慢,適用于輸送塊狀的,比重較大的,磨琢性大的物料,如石灰石、熟料等。斗式提升機的牽引構件有環鏈、板鏈和膠帶等幾種。環鏈的結構和制造比較簡單,與料斗的連接也很牢固,輸送磨琢性大的物料時,鏈條的磨損較小,但其自重較大。板鏈結構比較牢固,自重較輕,適用于提升量大的提升機,但鉸接接頭易被磨損,膠帶的結構比較簡單,但不適宜輸送磨琢性大的物料,普通膠帶物料溫度不超過60°C,夾鋼繩膠帶允許物料溫度達80°C,耐熱膠帶允許物料溫度達120°C,環鏈、板鏈輸送物料的溫度可達250°C。
TD型斗式提升機各部位潤滑周期:
|
序號 |
潤滑部位 |
潤滑材料 |
潤滑周期 |
潤滑方法 |
|
1 |
傳動及拉緊滾筒軸承 |
耐水潤滑脂 |
200小時 |
利用注油器 |
|
2 |
逆止聯軸器 |
耐水潤滑脂 |
50小時 |
利用注油器 |
|
3 |
拉緊螺栓 |
耐水潤滑脂 |
500小時 |
涂抹 |
|
4 |
電動機 |
耐水潤滑脂 |
6個月 |
35 |